Description
- Student Property
- Available 20th August 2026
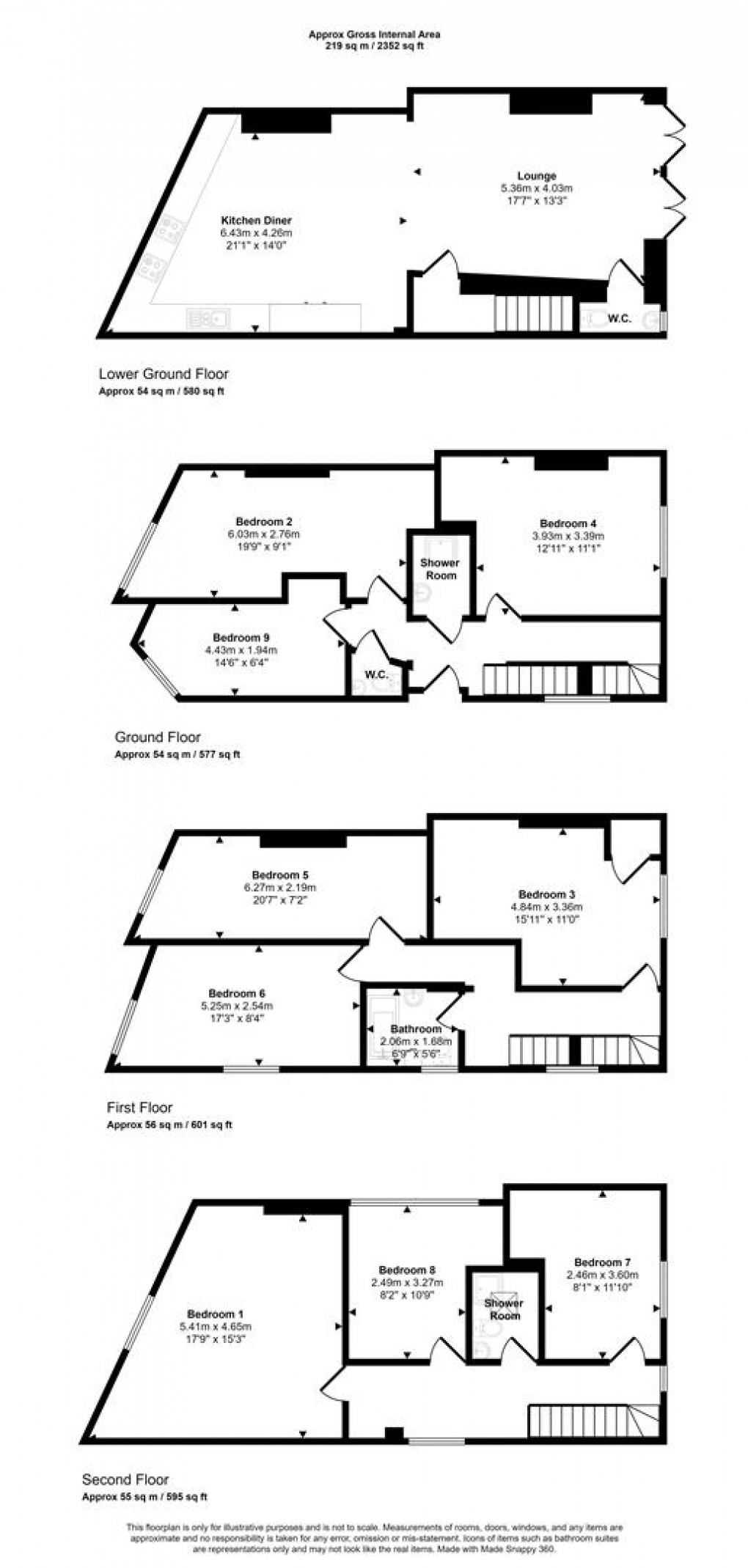
- 9 Bedrooms
- Courtyard Garden
- Ideal Location
- Modern
- Deposit - £10592.30
**STUDENT PROPERTY** ACADEMIC YEAR 2026/2027
Nine Bedroom House | Great Location | Available 20th August 2026 | Furnished
Bristol Property Centre is excited to offer this nine-bedroom student house on Worrall Road in Clifton. With its prime location near Whiteladies Road and the University of Bristol, this property provides a vibrant and convenient living experience.
Key features include:
-Nine spacious bedrooms spread across three stories, perfect for large groups of students
-Ample space for both studying and socializing
-Courtyard garden for relaxation and outdoor activities
-Easy access to the University of Bristol, making it convenient for classes and campus facilities
The surrounding area boasts a variety of amenities on Whiteladies Road, including shops, supermarkets, cafes, restaurants, bars, and entertainment venues, ensuring students have everything they need for daily life and leisure. Additionally, the beautiful architecture and green spaces in Clifton, such as Clifton Downs and the iconic Clifton Suspension Bridge, offer great opportunities for outdoor recreation and scenic enjoyment.
This property is ideal for students looking for a spacious and well-located home! Available 20th August 2026
Floorplan
To discuss this property call:
Market your property
with Bristol Property Centre
Book a market appraisal for your property today. Our virtual options are still available if you prefer.